Обяви За нас Контакти
Продава 2-СТАЕН
град Варна, Левски 2
148 500 €
290 440.76 лв.

(2 475 €, 4 840.68 лв./m2)
Цената е с включено ДДС
История на цената
Коригирана в 12:10 на 21 октомври, 2025 год.
Обявата е посетена 2404 пъти.
Площ:
60 m2
Етаж:
1-ви от 8
ТEЦ:
НЕ
Строителство:
Панел, Въведен в експлоатация 1980 - 1989 г.

Описание на имота:


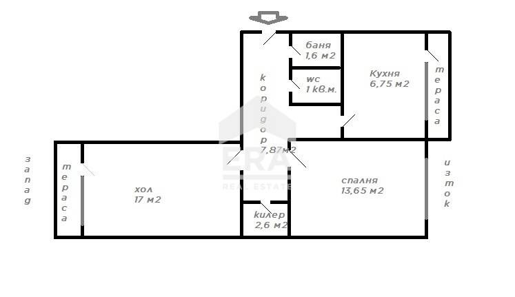
Само в ЕРА Лайф! Обявеният за продажба апартамент с площ от 59,66 кв.м е разположен на първи жилищен етаж от общо осем в панелен жилищен блок. Имотът е със следното разпределение: просторен хол (17 кв.м) с излаз към остъклена тераса с 10 см външна изолация (3,5 кв.м), спалня (13,65 кв.м), функционална кухня (6,75 кв.м) също с излаз към остъклена тераса с 10 см външна изолация (3,5 кв.м), коридор (7,87 кв.м), практичен килер (2,6 кв.м), отделни баня (1,6 кв.м) и тоалетна (1 кв.м), както и прилежащо мазе.

Жилището е с изложение: изток (спалня и кухня) и запад (хол).
Подовата настилка е комбинация от теракот и ламиниран паркет. Стените са боядисани с латекс, а санитарните помещения са облицовани със санитарен фаянс и теракот. Интериорните врати са нови, а дограмата е ПВЦ с външна изолация. Апартаментът се продава с наличното обзавеждане и оборудване, като санитарните помещения са новообзаведени. Отоплението/охлаждането е с климатици.

Ексклузивният имот се намира в панелна осеметажна жилищна сграда с контролиран достъп и функциониращ асансьор. В междублоковото пространство има свободни места за паркиране. В района се намират хипермаркет Билла, основно училище, втори корпус на Икономически университет, Технически университет, болници и автобусни спирки, ДГ 14 ,,Дружба', магазин My Market / на 200м./ ,, ДГ 19 ,,Славейче,, и ДГ 15 ,,Гълъбче,, под ул. Студентска, магазин Лидъл / на 500м. /. Имотът е подходящ както за постоянно живеене, така и за инвестиция с цел отдаване под наем. непосредствена близост още се намират денонощен магазин Мартини / на 100м./ , Код: 0708269

ЕРА е лицензиран КРЕДИТЕН ПОСРЕДНИК и предлага БЕЗПЛАТНА консултация на своите клиенти!

Всеки имот предлаган от ЕРА е проверен, посетен на място и заснет от наш консултант.

Оферта 0708269
Особености
Панел
Обзаведен
За контакт:
0889106881
Брокер:
Анна Стефанова
0889106881
Офис: ЕРА Лайф
Още оферти от брокера: Продава | Дава под наем | Купува | Наема
Агенция:
ЕРА ЛАЙФ
0889 106 881
Медал за прослужено време
В imot.bg от 2015 г.
eralife.imot.bg
Адрес:
област Варна, гр. Варна, ул.'Васил Чекаларов' 12
http://www.era.bg
ИЗПРАТИ ЗАПИТВАНЕ
ИЗПРАТИ ЗАПИТВАНЕТО

Продава 2-СТАЕН
град Варна, Левски 2
Обява: 1b175319461339600

148 500 €
290 440.76 лв.
История на цената
(2 475 €, 4 840.68 лв./m2)

Цената е с включено ДДС
ЗАПАЗИ ОБЯВАТА

Местоположение: град Варна, Левски 2

Допълнителни данни за имотите в района и сравнение с други райони

Покажи

Период

* Средните цени са определени чрез медианна стойност